Skip To Content

1601 E 4th Avenue

El Paso, TX 79901
  • $15
  • STATUS: Active
  • ON SITE: 341 Days
  • MLS #: 913456
UPDATED: 52 min ago
$15
  • 0
    BEDS
  • 1.98
    ACRES
  • 0
    BATHS
  • 0
    1/2 BATHS
Type:
Commercial-Lease
County:
Area:

School Ratings & Info

Offered by Limelight Real Estate Firm

Description

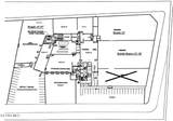
Specialty Cold Storage Warehouse available for lease conveniently located just 5 minutes from the nearest Mexico port of entry, making it an ideal choice for businesses in the import and export industry. This 76,138 square foot warehouse located at 1601 E FOURTH AVE offers 6 dock doors with levelers. The warehouse is broken into 2,000 sq ft of office & 74,128 sq ft of cold storage. Within the warehouse there are various Cold Storage rooms and Freezer rooms with ceiling heights ranging from 12 ft to 32 ft. The freezers & coolers run through an AMMONIA REFRIGERATION SYSTEM - Temperatures range from -5 Celsius to +40 Celsius. Fenced in parking area for truck storage holding Approximately 17 parking spaces. (Disclosure:Building exterior has been edited white in photo for visual purposes)



© 2025 Greater El Paso Association of Realtors MLS. All rights reserved. IDX information is provided exclusively for consumers' personal, non-commercial use and may not be used for any purpose other than to identify prospective properties consumers may be interested in purchasing. Information is deemed reliable but is not guaranteed accurate by the MLS or Rising Sun Development Group | Sandy Messer and Associates. The data relating to real estate for sale on this web site comes in part from the IDX Program of the Greater El Paso Association of REALTORS®. Real estate listings held by brokerage firms other than Rising Sun Development Group | Sandy Messer and Associates are marked with the IDX logo or the IDX thumbnail logo and detailed information about them includes the name of the listing brokers. Data last updated: 2025-11-18T13:13:45.25.
www.risingsundevelopmentgroup.com/homes/158704029
Print Image

1601 E 4th Avenue El Paso, TX 79901

  • Price: $15
  • Status: Active
  • On Site: 341 Days
  • Updated: 52 min ago
  • MLS #: 913456
0
Beds
0
Baths
0
½ Baths
1.98
Acres
County:
El Paso
Area:
El Paso
Property Description
Specialty Cold Storage Warehouse available for lease conveniently located just 5 minutes from the nearest Mexico port of entry, making it an ideal choice for businesses in the import and export industry. This 76,138 square foot warehouse located at 1601 E FOURTH AVE offers 6 dock doors with levelers. The warehouse is broken into 2,000 sq ft of office & 74,128 sq ft of cold storage. Within the warehouse there are various Cold Storage rooms and Freezer rooms with ceiling heights ranging from 12 ft to 32 ft. The freezers & coolers run through an AMMONIA REFRIGERATION SYSTEM - Temperatures range from -5 Celsius to +40 Celsius. Fenced in parking area for truck storage holding Approximately 17 parking spaces. (Disclosure:Building exterior has been edited white in photo for visual purposes)
Exterior Features

Construction Materials Metal SidingConcrete Parking Features Unassigned

Interior Features

Cooling Central Air Cooling YN Yes Fireplace YN Yes Fireplaces Total 9999 Heating Central Heating YN Yes

Property Features

Sewer Public Sewer Tax Amount 52602.36 Tax Year 2024 Tenant Pays All UtilitiesCommon Area MaintenanceGrounds CareInternal RepairsBuilding TaxExterior MaintenanceRoofRoof MaintenanceTaxesSee Remarks Utilities All City Water Source City Zoning M1

[Greater El Paso Association of Realtors] logo Listing information © 2025 Greater El Paso Association of Realtors® MLS
Listing provided courtesy of Limelight Real Estate Firm: .



© 2025 Greater El Paso Association of Realtors MLS. All rights reserved. IDX information is provided exclusively for consumers' personal, non-commercial use and may not be used for any purpose other than to identify prospective properties consumers may be interested in purchasing. Information is deemed reliable but is not guaranteed accurate by the MLS or Rising Sun Development Group | Sandy Messer and Associates. The data relating to real estate for sale on this web site comes in part from the IDX Program of the Greater El Paso Association of REALTORS®. Real estate listings held by brokerage firms other than Rising Sun Development Group | Sandy Messer and Associates are marked with the IDX logo or the IDX thumbnail logo and detailed information about them includes the name of the listing brokers. Data last updated: 2025-11-18T13:13:45.25.
 
https://bt-photos.global.ssl.fastly.net/elpaso/orig_boomver_2_913456-2.jpg https://bt-photos.global.ssl.fastly.net/elpaso/orig_boomver_2_913456-2.jpg https://bt-photos.global.ssl.fastly.net/elpaso/orig_boomver_2_913456-2.jpg
Logo
Rising Sun Development Group | Sandy Messer and Associates
855 N. Resler, Suite C
El Paso TX, 79912
Offered by Limelight Real Estate Firm