Skip To Content

12311 Montana

El Paso, TX 79938
  • $21
  • STATUS: Active
  • ON SITE: 4 Days
  • MLS #: 939188
New On Site 4 Days Ago
UPDATED: 59 min ago
$21
  • 0
    BEDS
  • 10.75
    ACRES
  • 0
    BATHS
  • 0
    1/2 BATHS
Type:
Commercial-Lease
County:
Area:

School Ratings & Info

Offered by Cap Rate Real Estate Group

Description

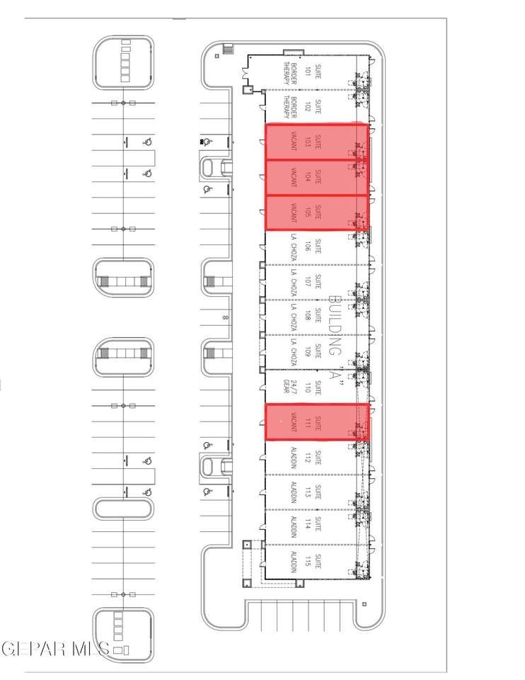
Gran Plaza Shops is a premier shopping center in one of El Paso's fastest-growing corridors along Montana Avenue, directly across from Walmart and Lowe's for unmatched traffic draw. This high-visibility development offers flexible suites from 1,200-3,600 SF plus 3 pad sites for ground lease or build-to-suit, ideal for national franchises and leading brands in retail, service, medical, and professional office. Tenants enjoy prime access to Loop 375 and Rich Beem Blvd, easy entry and exit, and strong synergy from national retailers, nearby county/state facilities, and the booming East El Paso logistics hub. NNN lease structure with customizable layouts.



© 2026 Greater El Paso Association of Realtors MLS. All rights reserved. IDX information is provided exclusively for consumers' personal, non-commercial use and may not be used for any purpose other than to identify prospective properties consumers may be interested in purchasing. Information is deemed reliable but is not guaranteed accurate by the MLS or Rising Sun Development Group | Sandy Messer and Associates. The data relating to real estate for sale on this web site comes in part from the IDX Program of the Greater El Paso Association of REALTORS®. Real estate listings held by brokerage firms other than Rising Sun Development Group | Sandy Messer and Associates are marked with the IDX logo or the IDX thumbnail logo and detailed information about them includes the name of the listing brokers. Data last updated: 2026-03-07T00:13:35.823.
www.risingsundevelopmentgroup.com/homes/173619928
Print Image

12311 Montana El Paso, TX 79938

  • Price: $21
  • Status: Active
  • On Site: 4 Days
  • Updated: 59 min ago
  • MLS #: 939188
0
Beds
0
Baths
0
½ Baths
10.75
Acres
County:
El Paso
Area:
El Paso
Property Description
Gran Plaza Shops is a premier shopping center in one of El Paso's fastest-growing corridors along Montana Avenue, directly across from Walmart and Lowe's for unmatched traffic draw. This high-visibility development offers flexible suites from 1,200-3,600 SF plus 3 pad sites for ground lease or build-to-suit, ideal for national franchises and leading brands in retail, service, medical, and professional office. Tenants enjoy prime access to Loop 375 and Rich Beem Blvd, easy entry and exit, and strong synergy from national retailers, nearby county/state facilities, and the booming East El Paso logistics hub. NNN lease structure with customizable layouts.
Interior Features

Fireplace YN Yes Fireplaces Total 9999 Heating Natural Gas Heating YN Yes

Property Features

Tax Year 0 Zoning C4

[Greater El Paso Association of Realtors] logo Listing information © 2026 Greater El Paso Association of Realtors® MLS
Listing provided courtesy of Cap Rate Real Estate Group: .



© 2026 Greater El Paso Association of Realtors MLS. All rights reserved. IDX information is provided exclusively for consumers' personal, non-commercial use and may not be used for any purpose other than to identify prospective properties consumers may be interested in purchasing. Information is deemed reliable but is not guaranteed accurate by the MLS or Rising Sun Development Group | Sandy Messer and Associates. The data relating to real estate for sale on this web site comes in part from the IDX Program of the Greater El Paso Association of REALTORS®. Real estate listings held by brokerage firms other than Rising Sun Development Group | Sandy Messer and Associates are marked with the IDX logo or the IDX thumbnail logo and detailed information about them includes the name of the listing brokers. Data last updated: 2026-03-07T00:13:35.823.
 
https://bt-photos.global.ssl.fastly.net/elpaso/1280_boomver_2_939188-2.jpg https://bt-photos.global.ssl.fastly.net/elpaso/1280_boomver_2_939188-2.jpg https://bt-photos.global.ssl.fastly.net/elpaso/1280_boomver_2_939188-2.jpg
Logo
Rising Sun Development Group | Sandy Messer and Associates
855 N. Resler, Suite C
El Paso TX, 79912
Offered by Cap Rate Real Estate Group